| ||||||
| № п/п | Наименование | Код детали | ||||
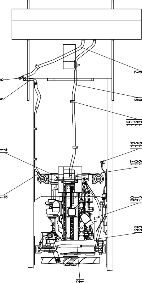
| 1 | Шланговый хомут DIN 3017-AS20-32/12C7-W2 | - | ||||
| 2 | Рукав | 46 0801-03 | ||||
| 3 | Рукав | 46 0601-19 | ||||
| 3 | Рукав | 46 0601-19-20 | ||||
| 4 | Рукав | 46 0801-04 | ||||
| 5 | Труба | 2002-43-128 | ||||
| 5 | Труба | 2002-43-128-20 | ||||
| 6 | Переходник | 2502-43-90СП(SP) | ||||
| 6 | Переходник | 2502-43-90-20СП(SP) | ||||
| 7 | Рукав | 46 0901-21 | ||||
| 7 | Рукав | 46 0901-21-20 | ||||
| 8 | Шланговый хомут DIN 3017-AS30-45/12C7-W2 | - | ||||
| 9 | Рукав | 46 0901-28 | ||||
| 9 | Рукав | 46 0901-28-20 | ||||
| 10 | Прокладка | 700-40-6684-02 | ||||
| 11 | Хомутик | 41 5355 | ||||
| 12 | Болт М8-6g?16 ГОСТ 7796-70 | - | ||||
| 13 | Шайба 8Т ГОСТ 6402-70 | - | ||||
| 14 | Штуцер | 2001-53-71СП(SP) | ||||
| 15 | Прокладка | 46-43-313 | ||||
| 16 | Болт зажимной | 700-41-2622 | ||||
| 17 | Прижим | 2002-43-133 | ||||
| 17 | Прижим | 2002-43-133-20 | ||||
| 18 | Болт М10-6g?25 ГОСТ 7796-70 | 28 0230 | ||||
| 18 | Болт М10-6g?25 ГОСТ 7796-70 | 28 0230-20 | ||||
| 19 | Шайба 10 ОТ ГОСТ 6402-70 | - | ||||
| 20 | Жидкостный отопитель «HYDRONIC М12»* | - | ||||
| 21 | Болт М8-6g?20 ГОСТ 7796-70 | - | ||||
| 22 | Рукав угловой d20?29* | - | ||||
| 23 | Хомут стяжной d30* | - | ||||
Обращаем Ваше внимание, что пункты отмеченные звездочкой, обязательны для заполнения.