| ||||||
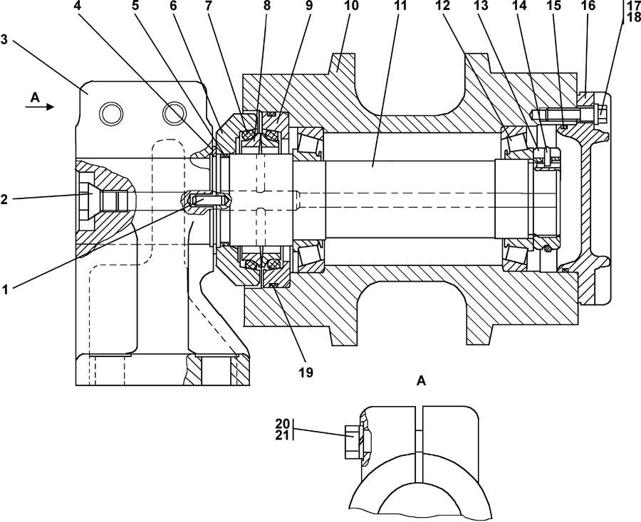
| № п/п | Наименование | Код детали | ||||
| 0 | Каток поддерживающий | 2501-21-15СП(SP) | ||||
| 0 | Каток поддерживающий | 2501-21-15-20СП(SP) | ||||
| 1 | Штифт | 32 5180 | ||||
| 2 | Пробка | 37 5509 | ||||
| 2 | Пробка | 37 5509-20 | ||||
| 3 | Опора | 2501-21-122 | ||||
| 4 | Кольцо С75 ГОСТ 13940-86 | 58 0672 | ||||
| 5 | Кольцо 069-075-36-2-51-1668 ТУ 2531-260-00149245-00 | - | ||||
| 6 | Крышка | 2501-21-121 | ||||
| 7 | Кольцо упругое | 40 0212 | ||||
| 8 | Кольцо уплотнительное | 2501-21-142 | ||||
| 9 | Корпус уплотнения | 2501-21-120 | ||||
| 10 | Каток | 2501-21-54СП(SP) | ||||
| 11 | Ось | 2501-21-119 | ||||
| 12 | Подшипник 7212А ТУ 37.006.162-89 | 46 2413 0706 01 | ||||
| 13 | Гайка | 2501-21-124 | ||||
| 14 | Кольцо стопорное | 2501-21-125 | ||||
| 15 | Кольцо 104-110-36-2-51-1668 ТУ 2531-260-00149245-00 | 25 3111 4209 05 | ||||
| 16 | Крышка | 2501-21-123 | ||||
| 17 | Болт М10-6gx30 ГОСТ 7796-70 | - | ||||
| 18 | Шайба | 31 5186 | ||||
| 18 | Шайба | 31 5186-20 | ||||
| 19 | Кольцо 130-135-36-2-51-1668 ТУ 2531-260-00149245-00 | 25 3111 4223 07 | ||||
| 20 | Болт М16x1,5-6gx85 ГОСТ 7796-70 | 28 0566 | ||||
| 20 | Болт М16x1,5-6gx85 ГОСТ 7796-70 | 28 0566-20 | ||||
| 21 | Шайба 16.ОТ ГОСТ 6402-70 | - | ||||
Обращаем Ваше внимание, что пункты отмеченные звездочкой, обязательны для заполнения.