| ||||||
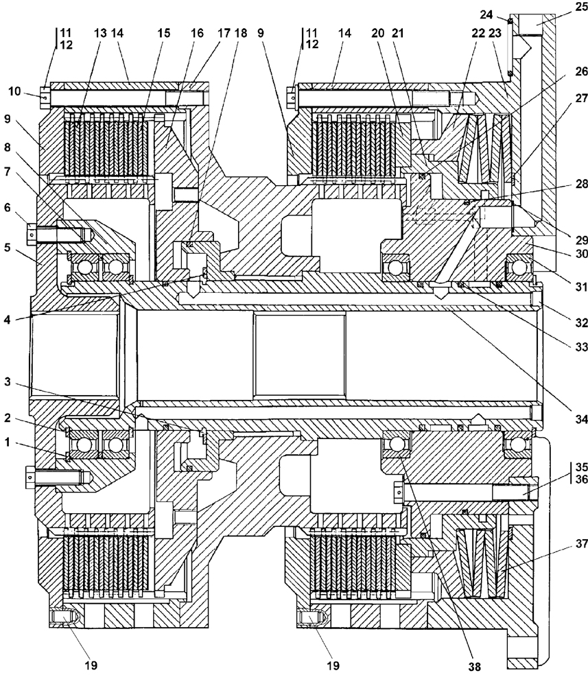
| № п/п | Наименование | Код детали | ||||
| 0 | Фрикцион бортовой и тормоз остановочный | 2501-18-16-01СП(SP) | ||||
| 1 | Кольцо С165 ГОСТ 13941-86 | 58 0865 | ||||
| 2 | Кольцо С120 ГОСТ 13940-86 | 58 0814 | ||||
| 3 | Кольцо | 2501-18-74 | ||||
| 4 | Кольцо С130 ГОСТ 13940-86 | 58 0820 | ||||
| 5 | Барабан | 2501-18-69 | ||||
| 6 | Болт 3М12-6gx35 ГОСТ 7796-70 | 28 0359-01 | ||||
| 7 | Кольцо | 2501-18-72 | ||||
| 8 | Обойма | 2501-18-71 | ||||
| 9 | Крышка | 2501-18-54 | ||||
| 10 | Проволока КС1,6 ГОСТ 792-67 | - | ||||
| 11 | Болт | 28 5517-02 | ||||
| 12 | Шайба | 31 5220 | ||||
| 13 | Диск | 2501-18-103СП(SP) | ||||
| 14 | Барабан | 2501-18-22 | ||||
| 15 | Диск | 2501-18-31 | ||||
| 16 | Поршень | 2501-18-70 | ||||
| 17 | Барабан | 2501-18-108СП(SP) | ||||
| 18 | Кольцо уплотнительное | 2501-12-181-26 | ||||
| 19 | Штифт | 32 5382 | ||||
| 20 | Пакет дисков | 2501-18-106СП(SP) | ||||
| 21 | Поршень | 2501-18-59 | ||||
| 22 | Кольцо нажимное | 2501-18-64 | ||||
| 23 | Корпус | 2501-18-33-01 | ||||
| 24 | Кольцо 039-045-36-2-51-1668 ТУ 2531-260-00149245-00 | - | ||||
| 25 | Штифт | 32 5475 | ||||
| 26 | Кольцо уплотнительное | 2501-12-181-05 | ||||
| 27 | Кольцо | 2501-18-62 | ||||
| 28 | Кольцо уплотнительное | 2501-12-181-03 | ||||
| 29 | Кольцо 022-026-25-2-51-1668 ТУ 2531-260-00149245-00 | - | ||||
| 30 | Ступица | 2501-18-50 | ||||
| 31 | Подшипник 1000924 ГОСТ 8338-75 | - | ||||
| 32 | Штифт | 700-32-2074 | ||||
| 33 | Кольцо уплотнительное | 2501-18-65 | ||||
| 34 | Вал | 2501-18-78 | ||||
| 35 | Болт 3М12-6gx110 ГОСТ 7796-70 | 28 1391 | ||||
| 36 | Шайба | 31 0225 | ||||
| 37 | Тарелка | 2501-18-28 | ||||
| 38 | Подшипник 124 ГОСТ 8338-75 | - | ||||
Обращаем Ваше внимание, что пункты отмеченные звездочкой, обязательны для заполнения.